Italiano
English
Français
Deutsch
Español
Русский
Portuguesa
Polski
Nederlandse
Український

COD.0000001324 - Via Messina Marine appartamento indipendente + giardino | Palermo (PA)

RISCALDAMENTO: no

STATO IMMOBILE: Totalmente da ristrutturare

TIPOLOGIA DELLA COSTRUZIONE: Residenziale

CLASSE PRESTAZIONE ENERGETICA: G (> 175 kWh/mq annui)

PORTINAIO: Assente

PERTINENZE:

CUCINA ABITABILE:

SPAZI ESTERNI: giardino - terrazzo

INDIRIZZO: Via Armando Diaz, Palermo (PA)

CATEGORIA: Immobili residenziali

SUPERFICIE: 400 mq

PREZZO: 500.000,00 €

ASCENSORE: no

VANI: 10

PIANO: terra

SPESE DI CONDOMINIO MENSILI: non note

CONTRATTO: Vendita

ZONA: Messina Marine - Brancaccio - Corso dei Mille

RICEVI INFORMAZIONI SU QUESTO IMMOBILE ATTENZIONE: non è stata accettata l'informativa sui cookie, di conseguenza questo servizio potrebbe non funzionare correttamente.

Data Annuncio: 16/04/2025 ore 10:42:36

Descrizione

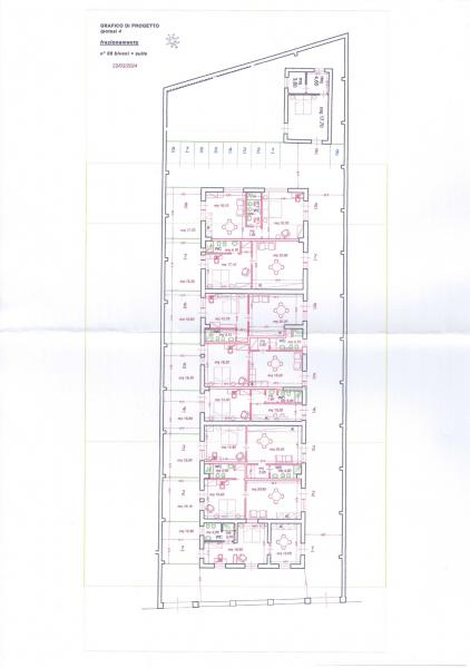
RIF. 0 1 3 2 4 - Palermo - Via Messina Marine - Casafacile Immobiliare propone in vendita un intero edificio indipendente dislocato su un unico piano, esteso per 400 metriquadrati ;  l'immobile è dotato di uno spazio esterno circostante esteso per 800 metriquadrati con accesso indipendente da 2 cancelli siti in via Messina Marine; inoltre, la superficie sovrastante l'immobile costituisce un ulteriore piano calpestio esteso anch'esso 400 metriquadrati; l'immobile si presta a vari usi , tuttavia, esiste uno studio di fattibilità per la realizzazione di 9 bivani, tutti dotati di accesso indipendente e corte esterna esclusiva; l'immobile si consegna in regola dal punto di vista urbanistico; APE G ( da ridefinire previa ristrutturazione). La richiesta per la vendita è di euro 500.000,00

Tel. 091-324930 / 327-4449659

Scheda-Tecnica-1324.pdfScheda-Tecnica-1324.pdf QR-Code-1324.pngQR-Code-1324.png